本案是一個雅致簡潔、科技迸發、帶有生命力量的協作性辦公環境,促進員工間的團結協作,項目坐落于深圳市寶安區寶源路與悅和路交叉路口萬庭大廈,是一個簡約風格的辦公室裝修設計樣板工程。設計師把辦公空間的包容和新生的特點融入到室內環境的設計中,用不同功能區域的色塊作為一種表達語言,來闡釋辦公場域的寬廣與柔和。墻面與天花大面積的留白的處理傳達明亮、干凈的特點,洽談室的墻面色彩與圖案互相呼應,形成具有強烈企業屬性的韻律感。前廳為了調和空間的視覺感受,在空間的基礎上進行延伸與深化,低調不失端莊,展示出專業、高端、值得信賴的企業形象。

洽談室的設計渲染出科技、創新的行業屬性。

色調,是一種傳達企業核心文化的完美展現形式。

開放式洽談區充滿舒適的雅致感,同時體現出企業高漲的熱情和活力。

小型會議室的環形吊燈與簡約風格的辦公家具形成空間維度上的連續感和一致性,讓空間更契合。

衛生間布局于開放區的公共通道上,便于員工們就近使用。

茶水區,員工可以隨時隨地進行交談,自由地表達,而這里也成為信息互換的重要場所。

開放而多元的工作空間為員工提供了豐富的放松形式。

色彩在樓梯和走廊空間中的運用提高了路線的可識別性。

中型會議室采用定制的地毯,豐富了空間的美感。

開放式辦公區的天花設計化解了頂面空間低矮的不足,縱向提升空間的高度,橫向延伸空間的長度。

吧臺休閑區通過簡約的設計語言,靈動而多元的功能布局,滿足一切的歇息需求。

工作交流區的家具組合以最簡潔利落的方式呈現。

過道空間的設計最大程度優化了動線距離。

會議室的商務氣息濃郁,低調的灰色提升了空間的層次感。

電梯間在空間架構上延續了簡約風格的核心理念,有助于增強內部環境的特色凝聚力。

休閑閱覽廳在整體的空間營造上,設計師始終將“時尚簡約、生命力量”的主題貫穿其中。

空間的軟裝陳設呈現出視覺上的反差與互補,在凸顯空間的簡約感之余,豐富了空間的層次感。

衛生間的裝飾掛畫傳遞著設計師的思想表達,在輕松釋然的柔和氛圍中,為使用者創建一個獨特而有趣的空間。

綠植元素的融入,平添一份自然淳樸的氣息,豐富了空間的層次感,讓空間充斥著活力,方便人性化的接待來訪者。

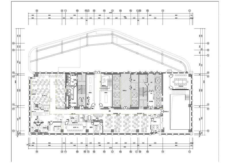
首層平面布置圖

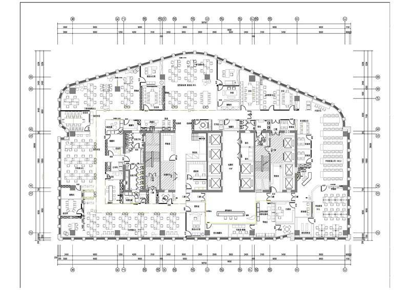
二層平面布置圖

茶水區立面圖

花園區立面圖

茶水區操作臺立面圖







