簡約不等于簡單,它是經過深思熟慮后創新得出的設計和思路的延展,而并非簡單的“堆砌”和平淡的“擺放”。本次項目坐落于深圳羅湖區愛國路、康寧路與太寧路交匯處泰寧花園,是一個黑白色簡約風格家居設計案例,以下是關于該項目室內空間的詳細裝修圖。在家具配置上,以白亮光系列家具為主,獨特的光澤讓空間的格調倍感時尚,具有舒適與美觀并存的享受。裝修的簡約從務實出發,注重生活品位、注重健康時尚、注重合理節約科學消費。含蓄的裝飾手法彰顯出簡約風格以少勝多、以簡勝繁的空間效果。

深圳羅湖區黑白色簡約風格家居室內空間選用的顏色非常純粹,營造出開闊簡練的視覺空間。

深圳羅湖區黑白色簡約風格家居的餐廚空間沒有太多的語言,平鋪直敘,才是生活最美的真諦。

深圳羅湖區黑白色簡約風格家居客廳的電視背景和左側的裝飾展示柜互相融合,實用也美觀。整個空間給人干凈舒適的感受。

電視背景墻的立面裝飾造型柔和而不生硬,地面選用意大利灰大理石,在白色基調中創造層次感。

深圳羅湖區黑白色簡約風格家居廚房開放式的格局中以大理石的餐桌界定出用餐區域。

壓花玻璃隔斷既保留了休閑接待室的私密性,同時又可保有視覺穿透感。

深圳羅湖區黑白色簡約風格家居的兒童房空間木質色溫由立面延伸至地面,讓整體空間塑造出一氣呵成的視覺延伸感。

隱藏式收納手法,清爽利落的明朗視野,符合屋主偏好的簡約風格,整體空間由白色調傳遞純凈氣息,搭配溫潤木質元素,局部穿插質樸黑色,營造出靜謐優雅的美學氛圍。

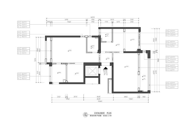
深圳羅湖區黑白色簡約風格家居裝修圖—原始平面圖

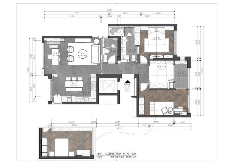
深圳羅湖區黑白色簡約風格家居裝修圖—平面布置圖