項目地點:深圳市龍崗區坂田
設計理念:「一個專注人的情緒和在空間中角色需求的齒科空間」齒科診所并非是一個讓人開心的地方,冰冷的掛號臺,令人焦慮的等候椅,充滿不安的診室門…但它理應是個帶來希望的場所,至少應該是個溫暖的空間,設計者希望通過空間表達溫暖、傳遞關懷。
![]()
深圳一生口腔醫院外觀裝修設計
外觀-弧形,像一個微笑的弧度,既突出關愛口腔主題,又是希望用弧形來表達溫暖,友好,開放,溝通與笑容。

![]()
深圳一生口腔醫院一樓大廳裝修設計
一層接待大廳以生活場景化的設計,有效減少使用者焦慮的感受。傳遞一生口腔溫暖、關懷的氣質。
![]()
深圳一生口腔醫院休憩區裝修設計
木質材料與植物綠的色彩搭配、無害的裝飾材料和溫暖而柔和的燈光在感官調性上傳遞溫暖的質感。

![]()
深圳一生口腔醫院二樓大廳裝修設計
二層接待大廳-接待臺面的高低層次設計體現了對孩子們的重視。
![]()
深圳一生口腔醫院開放區裝修設計
開放式的平面自然地起到了引導訪客的作用,使其能夠輕松地對環境形成認知。設計師利用材料透明度的差異,以最有利的布局策略對公共空間和私人空間進行了劃分。

![]()
深圳一生口腔醫院候診區裝修設計
室內的墻面具有不同的透明度:從等候區域可以看到接待臺后方的診區;實驗室和器材消毒中心的部分玻璃隔墻覆蓋以半透明的白色薄膜,為醫務人員提供了半私密的工作環境。傳遞了診所公開透明的理念。

深圳一生口腔醫院隔墻裝修設計
室內選用的材料具有持久耐用、觸感柔和以及易于維護的特征。清潔、純凈與舒適是診室設計最重要的三個因素。

深圳一生口腔醫院兒童診區裝修設計
每個房間的大小和室內布置根據使用目的而有所不同。定制設備尺寸、熟悉卡通元素加入,一定程度上消除孩子的陌生恐懼感。
![]()
深圳一生口腔醫院兒童體驗區裝修設計
二層入口的重要位置規劃了兒童體驗區,各種互動游樂設施如攀爬、拉扯、搖擺、滑梯等豐富了這個空間,有效緩解等候就醫孩子的焦慮。對孩子的關懷就是對成人的關懷,一個能關懷孩子的診所某種程度上就能傳遞診所的關愛與責任感。
空間永遠不是孤立存在,人的行為在空間中的情緒和角色的需求,是我們一直希望探尋的 。
1F-2F原始平面圖⊿
F-2F模擬動線分析⊿

一層動線分析⊿

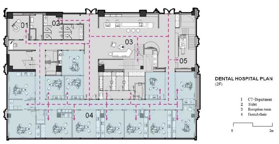
二層動線分析⊿
1F-2F最終平面圖⊿










