本項目的設計構成來源于時尚潮流與傳統文化之間的加減,洽談室滿足了接待賓客的需要,藍色調的墻面掛飾與木飾面背景墻相互呼應,淺色的水磨石地面通過燈光的聚焦、顏色對比將家具襯托出來,使目光集中在優雅的室內環境中。位置坐落于深圳市鹽田區港荔山路鹽田港工業大廈,是一個現代中式風格辦公室裝修設計案例。各功能區域藍色的點綴圍合出較為愜意的空間,柔和的沙發帶來舒適的體驗,均滿足展示,辦公,商務、休息交流的功能,達到沉浸式的工作與接待。設計中要滿足不同功能的同時,還能讓空間的行走動線與陳設展示融合進去。

藍色這樣神秘高雅色彩加以強調,簡易手法省去了做作裝飾,給原本非常質樸的空間帶進了高級有趣的空間體驗感。

原木色的免漆板墻面,是一種鮮活氣息的空間延展。

在這樣的現代中式風格室內環境中,建筑物的內部造型輪廓顯得格外突出。

藍色的飾品陳設強調了空間藝術的本性,高雅的質感調節了局部留白的沉悶。

從硬裝到軟裝,整體空間每個細節的雕琢都經過反復考量和推敲。

藍色冰川的藝術裝飾畫使空間中帶有一種自由性和夢幻性。

基于空間性質和細部考量,從燈光、陳設到色彩配置,顯現出極高的企業品味。

內嵌式的裝飾陳列架采用前衛的風格化設計,通過提煉歷史風情和現代元素來強調場域的文化蘊涵。

現代中式風格的辦公場域令豐潤的情感與城市人文精神內里成為空間的主線與靈魂,令生活邂遇美學,藝術融于生活。

白色的藝術雕塑與室內的園藝景觀令空間精致感倍出。

藍水晶的藝術陳設靈動有趣,富有雅意。

前臺服務區的設計賦予了空間的靈動意韻。

天花的不銹鋼波紋板在當代美學格調基礎之上,融入地域自然與人文。

藍灰色的定制地毯引起場景與藝術之間的共鳴,令溫潤的城市人文與空靈的詩性自然相合相生。

爵士白大理石的服務臺讓空間內里的每一個細微之處,都向外散發出一種對自然、對日常更具深刻的美。

現代中式風格辦公空間的設計以一貫純粹簡約的架構,將地域、自然、文化、體感等轉化為獨特的視覺力量,回歸美學本真。

陳列展示區融合當代的設計筆法,予以符號式的創意呈現。

外觀的設計在一形一構中審慎地進行象征表達,呼應自然的璞真、拙樸、清幽之感,喚醒城市人文記憶與活力。

貴賓接待室用模塊概念將傳統辦公模式與未來辦公發展相結合,從而塑造出具有“體驗性、品質性”的辦公空間。

藝術吊燈的點狀光源有序點綴,躍動出空間的視覺張力,強調舒適雅致感的同時不失溫暖與靈動。

墻面的不銹鋼藝術掛飾散發著流動、交互的環境氣息。

貴賓接待室的用餐區采用類似家庭式布局,我們可以在這里充分享受愜意的午后暖陽,享受心靈的回歸。

展示區空間設計效果圖

沙盤陳列區設計效果圖

洽談廳設計效果圖

總經理辦公室設計效果圖

外觀設計效果圖

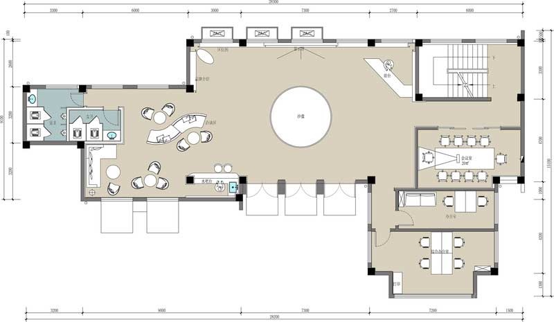
一層彩色平面布置圖

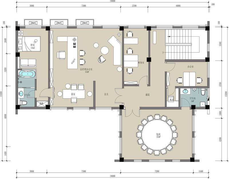
二層彩色平面布置圖







